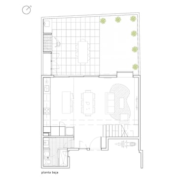
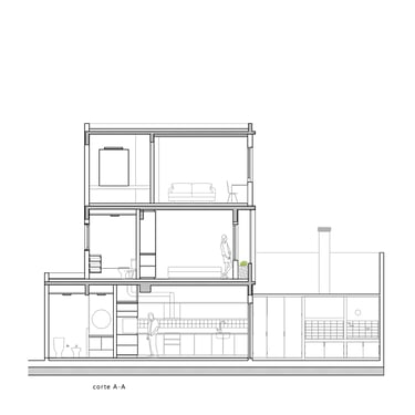
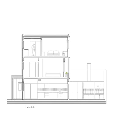
Ubicación: Saavedra, CABAVivienda Unifamiliar PH - Obra nuevaFotos: Federico Shapochnik
Diseño de viviendas y reformas personalizadas.
Estudio
Contacto
caza.arqs@gmail.com
+54 11 1234 5678
© 2025. All rights reserved.